Astra Zeneca
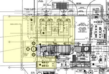
Our Client asked ScanView to provide 3D laser scanning to point cloud data that creates ultra-high accurate measurements of the Astra Zeneca plant and then create a CAD model of the pointcloud to include the area highlighted in yellow below, this included; Pipework, Superstructure internally and externally relative to the highlighted zone, medium and large assets i.e. boilers, cabinets, cable tray, stairs, handrailing etc. MEP assets >2” diameter.
Scanview also designed and provide fabrication drawings and isometrics for the following:
· Steam Piping
· Mains Gas
· Oil Lines
· LP Steam
· Pipe Supports
And also provided a stress analysis on the main steam lines to the temp boilers.

